anthromasjid (wip)

Project overview

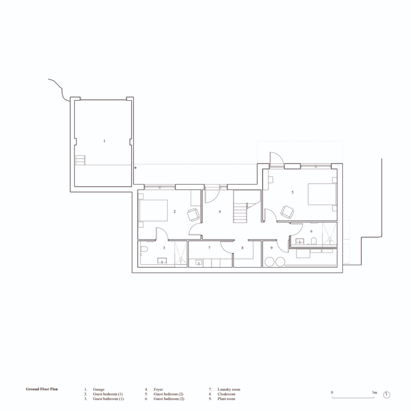
This project involves the design and execution of a new single-family home for a family of four. The site is located in a suburban neighborhood with a mix of traditional and modern homes, and the goal of the project is to create a modern and sustainable home that is both functional and beautiful.

Details

My contributions have been instrumental in shaping the overall vision and design of the project. I oversaw every aspect of architecture, construction administration, through furnishing and styling.

Specifications

Area of site

65 ft2

Date

2022

Status of the project

Under construction

Tools used

Photoshop, SketchUp

My sketches

Results

The project was a great success. The project was completed on time, and the client was very satisfied with the final result. The design plan was executed effectively, and the resulting space has exceeded expectations. The team also finished construction under the calculated budget.

amr adnan abbas adas

bldg 28, kfupm, dhahran, saudi arabia | ( | a.bindarim@gmail.com

© amr adnan abbas adas, 2026